BAUEN IM BESTAND

DENKMALPFLEGE

x

Hochschule für öffent-

lichen Dienst und Land-

hauskirche Fürstenfeld

2020-2022


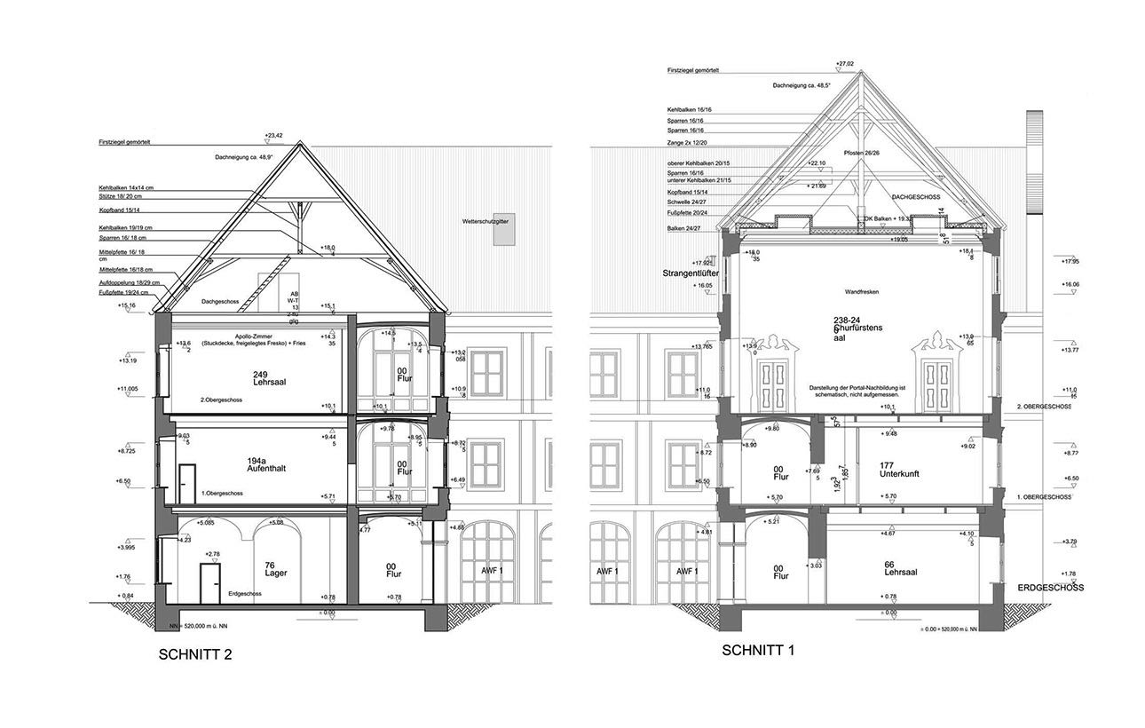
Bauabschnittsweise Sanierung der Dachhaut und Fenster/ Fassaden

einer denkmalgeschützten, ehem. Klosteranlage


Bauherr: Staatliches Bauamt München 1

x

1_hfîd_01