WOHNEN

GEWERBE

x

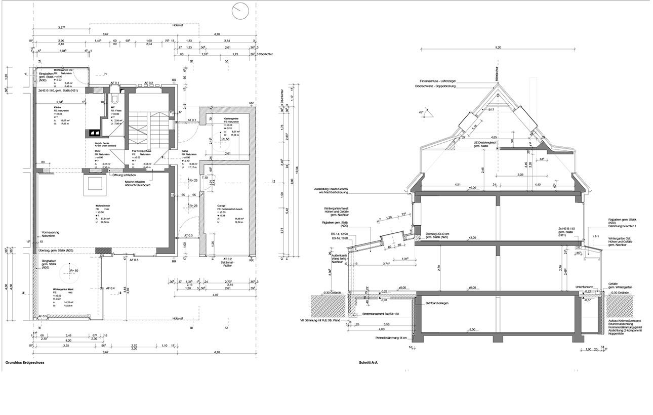
Söllereck, München

2008


Umbau und Erweiterung einer Doppelhaushälfte mit energetischer Sanierung


Wohnfläche: ca. 235 m²

Bauherr: privat

x

1_DSCN2251